Previous | Next | Discuss :: Free Advice (General Feng Shui)
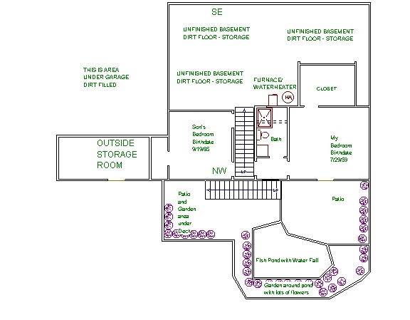
Attached is a 3 drawings one of the upstairs, one of downstairs also showing my pond out back and the third is one I sent in before showing the general slope of the lot and how the house sits. Thanks you so much for taking a look at this. I know there is something wrong. I have tried several times to sell this house and can't seem to find a buyer. When I rent it they only last a few months before they move and I am forced to move back into the house.
Again Thank You
Upper Level.JPG
Upper Level (53,405 bytes)
Downstairs(1).JPG
Lower Level (61,828 bytes)
|
|
[ Site Search | Forum Search | Picture Search | Site Map ] |
|
|
|
|
||
|
Help Desk: (65) 9785-3171 |
||
|
|
|
|
|
Highlights |
|
Extend your learning with Master Cecil Lee's Applied Feng Shui Made Easy Book. |
|
Site Navigation |
|
|
|
|
Google SiteSearch |
Sponsored Links |
|
|
![]()